一键楼梯插件
1.0 免费版- 软件大小:8.88 MB
- 更新日期:2019-06-03
- 软件语言:简体中文
- 软件类别:工程建筑
- 软件授权:免费软件
- 软件官网:未知
- 适用平台:WinXP, Win7, Win8, Win10, WinAll
- 软件厂商:
软件介绍人气软件相关文章网友评论下载地址
一键楼梯插件提供详细的楼梯设计功能,可以让用户在电脑上轻松设计你需要的楼梯样式,这款软件的功能很丰富,下载以后可以得到三款插件,将插件添加到你的autocad软件就可以开始设计图纸,另外软件也提供详细的设计教程,可以软件直接查看官方提供的GIF演示图,从而了解插件界面的功能以及设计图纸的技巧,如果你经常使用AutoCAD软件设计图纸就可以将小编推荐的这款一键楼梯插件添加到你的CAD软件设计楼梯图纸!

软件功能
1、打开一键楼梯插件就可以显示基本信息,可以软件输入楼层参数
2、支持标准层高设置,在软件上输入数值,将建筑层数也输入到软件
3、插件不能独立运行,需要在CAD软件上启动
4、提供一键楼梯YL.VLX设计可以在软件设置绘图参数
5、提供墙体信息输入,在软件界面添加任意墙体数据
6、提供楼梯楼板参数设置,将楼梯的基础信息输入到软件
7、用户添加楼梯参数以后就可以将数据添加到绘图界面,从而立即生成楼梯
8、支持框柱参数以及框梁参数设置,轻松将指定的数据输入到软件
9、用户可以将全部数据插入到绘图界面,也可以选择部分数据插入
10、支持左右轴号输入、支持女儿墙输入、支持踏步宽度输入
软件特色
1、支持一键楼梯平面体验版(命令:LP).VLX,在软件编辑相关的踏步参数
2、轻松在软件界面画图,打开插件就可以显示参数示例图
3、输入数据以后示例图界面的数据也会发生变化,从而在软件界面立即绘图
4、软件功能很多,为用户设计楼梯提供更多帮助
5、软件可以设计的楼梯类型也很多,支持对AT类型的楼梯设计,也可以选择BT类型
6、参数都已经在软件界面显示,输入对应项目参数就可以添加到图纸
7、也提供了一键梯板TB.VLX插件,为用户快速设计楼板
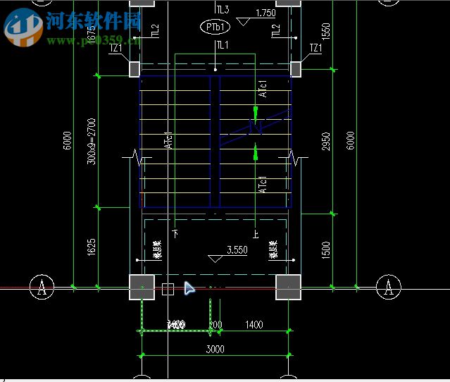
8、可以输入左上框柱截面宽度:500、左上框柱截面高度:500、左上框柱横向偏心
9、支持输入楼梯纵向进深尺寸:6000、楼梯横向开间尺寸:3000、楼面梯梁定位尺寸:1500
使用方法
1、打开一键楼梯插件直接查看到很多插件,可以直接在软件界面打开你需要使用的一个插件

2、相关的操作可以直接在软件界面点击界面显示的GIF图片,可以查看动态的插件使用教程

3、“一键楼梯YL.VLX”是需要添加到AutoCAD软件上使用的,当你在绘图的时候就可以在这里添加插件

4、软件功能还是非常多的,如果你的电脑已经安装相关的CAD软件就可以在这里添加对应的插件,使用命令就可以在CAD软件启动插件

5、由于小编的电脑,没有CAD软件所以这里就不继续说明了,如果你会使用CAD就可以将楼梯插件添加到AutoCAD软件使用

6、插件使用还是非常简单的,启动软件就可以显示很多参数设置,可以快速设计2D平面图

7、本软件提供相关的楼层信息设置,可以对高度设置,可以对楼梯宽度设置,可以自动将数据显示的图纸上

8、提供详细的楼梯属性设置界面,手动在软件界面输入参数就可以点击确定,随后图纸上的内容会变化

9、如果你需要快速设计楼梯或者是设计板梯就就可以下载这款插件使用,将其添加到CAD软件就可以立即绘图

10、软件也提供相关的参数说明,可以将这里的图纸添加到软件查看参数列表及主要参数图解

11、有三个插件可以使用,这里提供很多参数输入界面,在软件就可以直接设置界面的参数,详细的内容可以在图纸上操作

12、楼梯设计的方式很多,每个用户都可以快速设计楼梯。适合建筑设计的朋友使用

13、如果你会设计楼梯就可以在软件界面直接调整参数,例如设计楼层数量,设计每个楼层需要添加多少阶梯

14、建议用户在软件保存文件夹里面查看官方提供的GIF图片,从而了解这些插件是如何使用的

15、参数输入(先拾取最后再修正)、楼梯梯板厚度:140、全段踏步数量、低端踏步数量、高端踏步数量、低端平台长度:

16、可以输入右上框柱截面宽度:500、右上框柱截面高度:500、右上框柱横向偏心:、右上框柱纵向偏心:回、左下框柱截面宽度:500、左下框柱截面高度:500

17、首层或者楼层标高:3.550、中间休息平台标高:1.750、上轴框梁截面宽度:300、上轴框梁偏心信息:、下轴框梁截面宽度:300、下轴框梁偏心信息:

18、左轴框梁截面宽度:300、左轴框梁偏心信息、右轴框梁截面宽度:300、右轴框梁偏心信息:2、平台梯梁截面宽度:250

下载地址
-
一键楼梯插件 1.0 免费版
其他版本下载
- 查看详情品茗脚手架计算软件 2016 最新免费版179.48 MB简体中文16-11-05
- 查看详情suapp su2016 3.2.0.3 官方最新版2.91 MB简体中文16-10-27
- 查看详情天正建筑2016下载 64位/32位 免费版379 MB简体中文17-01-23
- 406 MB简体中文17-03-26
- 查看详情清华斯维尔2016下载(附安装使用教程) 官方最新免费版150.18 MB简体中文16-10-07
- 查看详情3dmine软件下载(三维地质建模工具) 2017.5 免费版521 MB简体中文17-09-21
- 查看详情天正建筑2017 32/64破解版下载 免费版412.5 MB简体中文17-02-28
- 查看详情EPLAN P8 EEC One下载(电气设计软件) 2.6 免费版1.13 GB简体中文16-11-20
- 查看详情ZDM软件(水工设计软件) 2016 官方版21.7 MB简体中文16-10-26
- 查看详情广联达g工作台gws(广联达g+)下载 5.2.28 官方最新版55.96 MB简体中文16-10-05
人气软件

草图大师2018中文版(sketchup pro 2018)184 MB
/简体中文
天正给排水t20 v5.0下载472 MB
/简体中文
t20天正建筑 v5.0下载721 MB
/简体中文
理正工具箱下载(理正结构工具箱)83.9 MB
/简体中文487 MB
/简体中文
t20天正建筑v4.0下载487 MB
/简体中文
t20天正建筑v6.0破解版608 MB
/简体中文
广联达bim钢筋算量软件ggj2013574 MB
/简体中文665 MB
/简体中文
t20天正电气v5.0下载481 MB
/简体中文
相关文章
网友评论共0条

宏业清单计价软件 2018.01.001 官方全新版
鸿业交通设施设计软件下载 3.1 免费版
建标库 8.3.0.9 官方版
道路测设大师 9.7 官方版
擎洲广达云计价软件 2.3.1 官方版








精彩评论